Fue anunciado la semana pasada y ZonaCampo dialogó con el Secretario de Desarrollo Económico Julio Valetutto para conocer más detalles de una obra clave para la cadena de la carne local
Exclusivo ZonaCampo
Luego de que en 2018 se cerrara el matadero municipal mucho se habló de la necesidad de generar un proyecto de Frigorífico a nivel local que terminara de integrar toda la cadena cárnica de la región, teniendo en cuenta el perfil productivo del partido que es un referente ganadero a nivel nacional por stock y calidad genética.
Hace algunos días el Intendente Ezequiel Galli junto al Secretario de Desarrollo Económico, Julio Valetutto y a un representante de Argus Meats anunciaron que Olavarría tendrá sufrigorífico y que la empresa desembolsará más de 450 millones de pesos para su construcción.
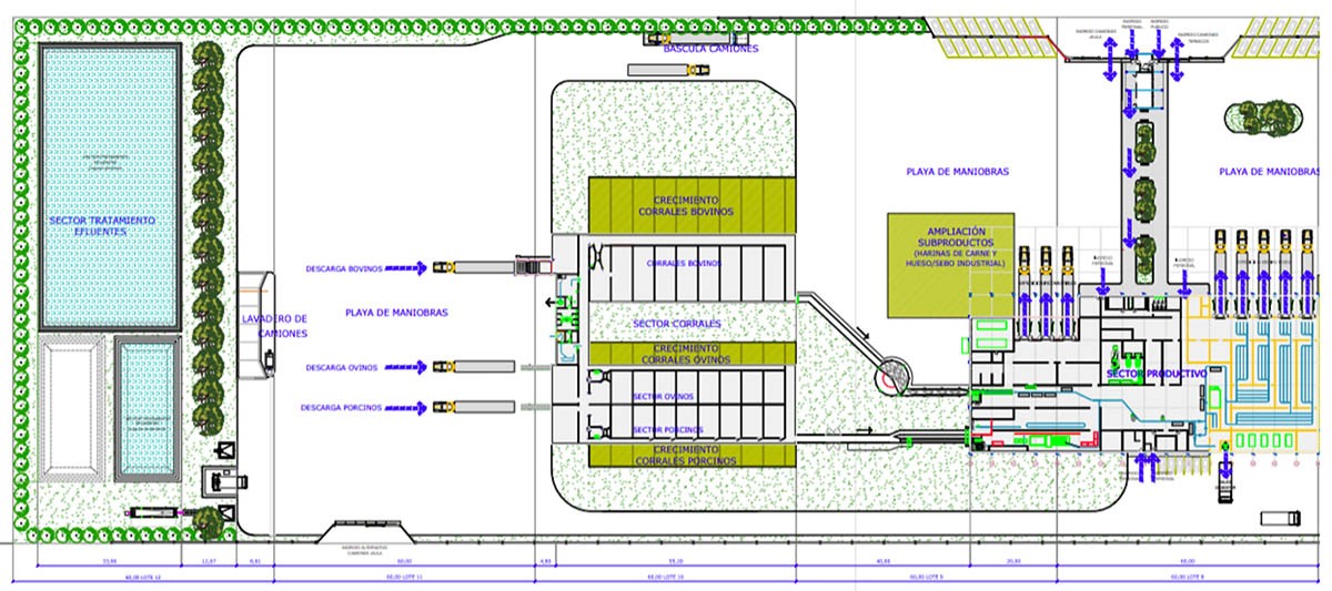
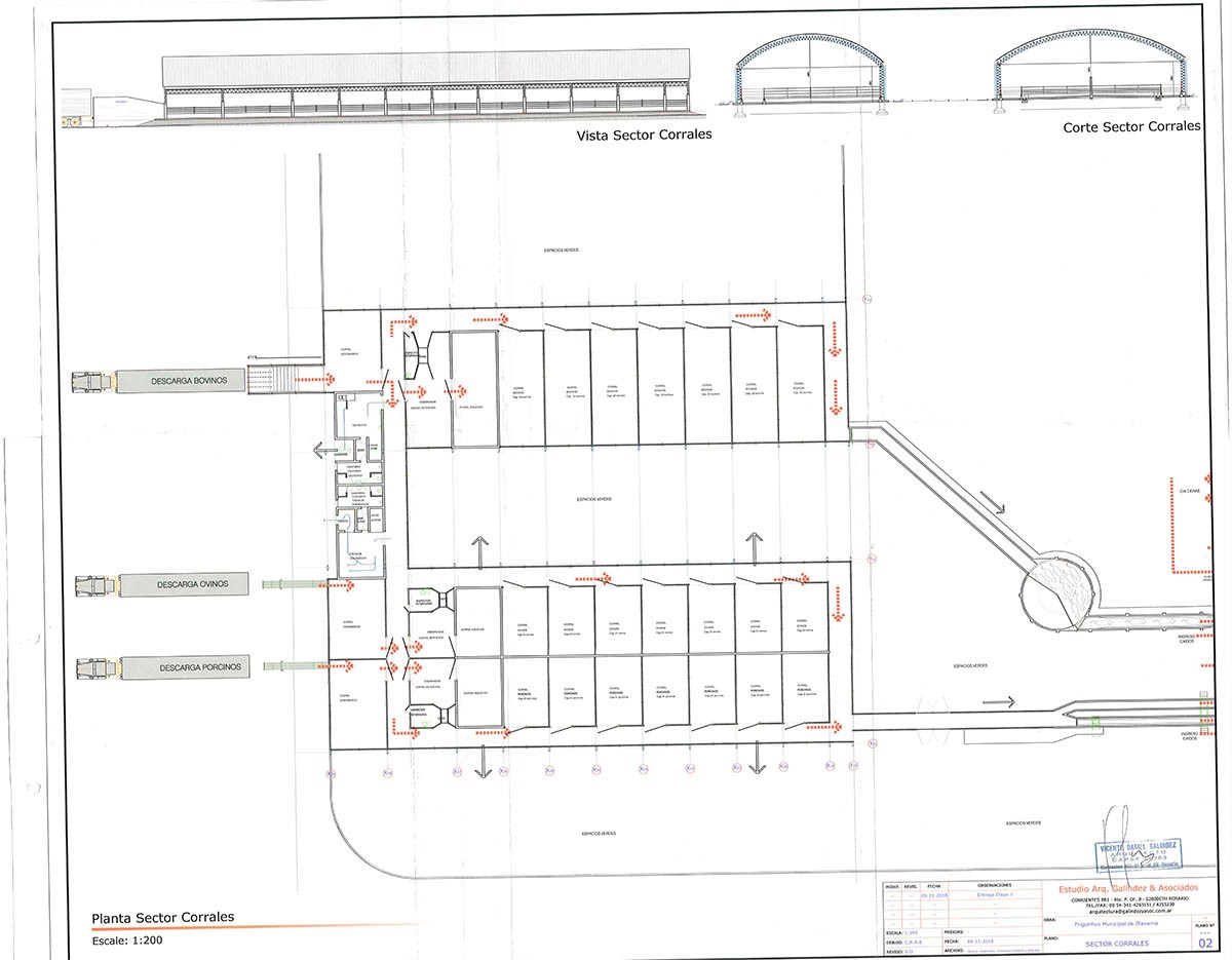
ZonaCampo dialogó en exclusiva con Julio Valetutto para conocer más detalles del proyecto y tuvo acceso a la presentación donde se resumen los aspectos fundamentales del mismo como el escenario productivo, la composición ganadera del partido, la factibilidad del proyecto, las características de la inversión y los planos presentados.
ZonaCampo: Julio, buen día, contanos cómo se origina este proyecto y cómo se fueron dando las cosas hasta poder concretarlo
Julio Valetutto: Hace alrededor de 3 años que se cerró el matadero anterior que fue clausurado por disposición provincial y nunca se pudo recuperar para otro uso dado que la situación del lugar y las condiciones de trabajo no eran las adecuadas. El cierre del matadero obligó a los productores a trasladar hacienda a otros lugares encareciendo los costos y generando un momento muy difícil para toda la cadena a nivel local. Ante estas circunstancias el intendente nos convoca para generar un proyecto con inversores privados. Desde Desarrollo Económico y junto a Vicente Galindez generamos un anteproyecto que contempló el perfil de la ciudad, las ventajas y las necesidades del partido. Una vez concluído empezamos a trabajar sobre el perfil de posibles inversores a los que podría interesarles el proyecto.
ZonaCampo: ¿Por qué llevó todo este tiempo arrancar, o al menos anunciar el comienzo de algo de esta magnitud?
Julio Valetutto: Mientras nosotros generábamos el proyecto las políticas públicas a nivel nacional respecto del mercado y las exportaciones empiezan a no ser tan claras y los inversores con los que estábamos teniendo reuniones comienzan a postergar sus decisiones para invertir una cantidad de dinero que en ese momento era igual que ahora, unos dos millones y medio de dólares. Nunca dejamos de intentarlo y finalmente estamos en proceso de concretarlo con uno de esos interesados que finalmente manifestó que quiere avanzar con el proyecto..
ZonaCampo: ¿Cómo se pusieron en contacto con la empresa Argus Meat, y cuál va a ser la relación entre la firma y el Municipio?
Julio Valetutto: Había varias empresas interesadas o trabajando con nosotros, averiguando con el anteproyecto y después de la ordenanza de promoción a las inversiones donde se genera un beneficio impositivo para los que invierten en Olavarría en sectores industriales. Como te dije, había varios inversores averiguando pero no todos se definían, esta empresa fue la que más velocidad y decisión tuvo, es la empresa privada que manifestó que quiere arrancar a a trabajar y que está dispuesta a empezar a construir este nuevo frigorífico para la ciudad. Así que nosotros como municipio, buscaremos acompañar a un privado que quiere invertir en Olavarría, de la manera que tiene que hacer el municipio y haciendo que se cumplan todas las condiciones que tienen que cumplir y que el inversor pueda tener lo necesario para para que tenga un buen impacto en la ciudad.
ZonaCampo: ¿Qué beneficios aspiran que traerá para Olavarría?
Julio Valetutto: El proyecto tiene que ver con la creación de empleo, de mano de obra calificada, de valor agregado a un sector donde en Olavarría somos muy fuertes pero tenemos mucho por desarrollar en la cadena de valor y por supuesto en la necesidad de resolverlo de manera local.
Somos el partido con más cabezas de ganado de la provincia de Buenos Aires y además de esa ventaja tenemos como fortaleza una genética de calidad y el objetivo de este proyecto que contó con el aporte de la Facultad de Ingeniería y un montón de otras fuerzas vivas a las que convocamos es ir ampliado y mejorando la cadena de la carne donde aparte de su producción es fundamental su industrialización y el aprovechamiento de todos los subproductos que genera.
ZonaCampo: ¿Qué etapas se prevén para la implementación y cuándo estiman que comenzará a funcionar?
Julio Valetutto: Está previsto un plazo de dos años porque es una obra donde hay que tener en cuenta el impacto ambiental y las etapas tienen que desarrollarse cumpliendo con las exigencias edilicias, higiénicas y sanitarias y todas las normativas nacionales, provinciales y municipales. Por supuesto que es un proyecto que es muy importante que se realice bien, que tenga en cuenta las vías de acceso, los cercos, la iluminación, infraestructura de corrales, el tratamiento de efluentes, un montón de cuestiones que tanto a los equipos municipales como como el resto de los responsables nos interesa que eso esté bien controlado, así que estamos trabajando en conjunto con el privado para que todo se haga correctamente .
El proyecto recién empieza, el anuncio se hizo porque vamos a arrancar y la empresa lo quería contar, pero hay que tener en cuenta que recién comienza, que va a llevar tiempo y aspiramos a que todo salga de la mejor manera posible.
ZonaCampo: ¿Julio, gracias por recibirnos. Una última pregunta, esto es una necesidad postergada, qué rol jugó la pandemia en esto?
Julio Valetutto: Si, confluyeron varios factores, y entre ellos en medio de todo esto tuvimos la pandemia que afectó muchísimo toda la actividad y las inversiones, por supuesto, y después de la pandemia pudimos lograr que uno de los inversores se termine de definir, acepte contratar mano de obra local y se lance a la ejecución del proyecto. Así que esperamos que toda la evolución sea con las condiciones necesarias y que puedan generar cosas positivas para el partido. El proyecto recién empieza, el anuncio se hizo porque vamos a arrancar y la empresa lo quería contar, pero hay que tener en cuenta que recién comienza, que va a llevar tiempo y esperemos que todo salga de la mejor manera posible. Gracias a ustedes, quedo a disposición.










